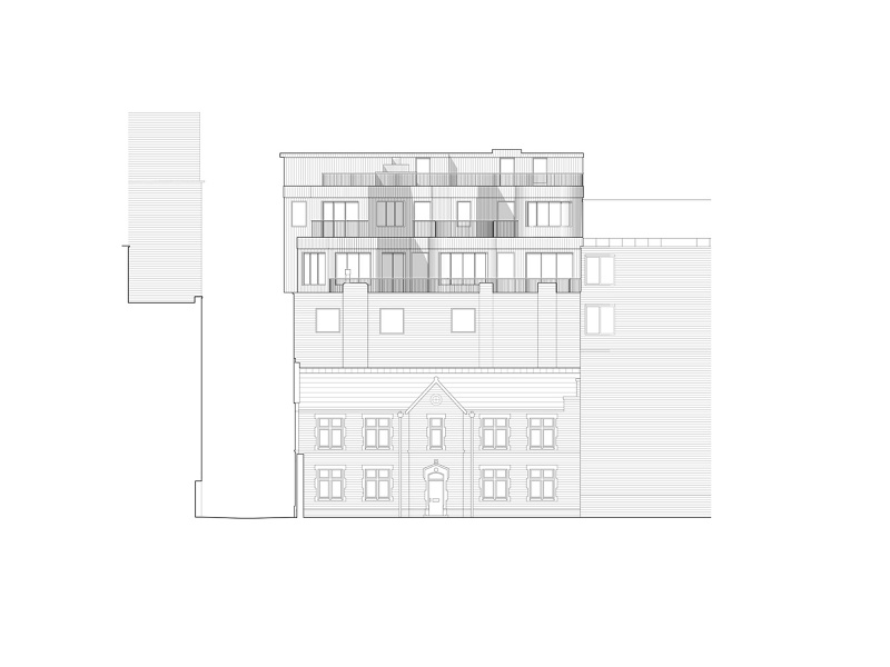
Smart's Place
While many rooftop extensions extrude the plan of their host building or are subordinate in character, Smart’s Place is intended to feel more like a house on a hill, treating the roof space as a new ground plane. The two-storey tiered extension to the nineteenth century warehouse building responds to the variety of surrounding rooflines, while its plan recalls those of pre-modern town houses with an arrangement of living rooms with projecting bay windows.
The floor plan is organised with a spine of service spaces to the north along the party wall, with living spaces positioned to the south to take advantage of the views over London. Living rooms fan out from the lift arrival point, with the series of step-backs and bays creating rooms – some curved, others more angular – each with their own relationship to the skyline. An enfilade arrangement gives them both a sense of intimacy when individually occupied but generosity when used together for a social occasion. A curvaceous staircase connects each floor, and ribbed ceilings create further interest and an ideal acoustic, even when the home is full of guests.
Externally, brickwork is laid vertically, creating a continuous skin that can accommodate the tight geometries of individual rooms. The brick is familiar to the context yet distinct in colour and orientation, further reinforcing the sense of a new building sitting on top of the old. The addition of a residential scheme on the top of the building, rather than a commercial development, is unusual given the scale of the building, but is a positive example of enriching the life of the city by combining living and working in central London.
Project
Roof extension
Location
London
Client
Baylight Properties
Status
Completed 2023
Design Team
David Kohn, Jennifer Dyne, Jessica Lyons, Tarn Philipp, Rebecca Liebermann, Laura Büchi, Jenny Hill, Nicola Blake, Tom Whittaker, Daniel Norman, Rachel Glenn
Collaborators
Uprise Construction
Webb Yates
Todd Longstaffe-Gowan
Collective Planning
Harwood
Millimetre
Photography ©Will Pryce














